- Woonoppervlakte
- Circa 66 m²
- Perceeloppervlakte
- Circa 62 m²
- Bouwjaar
- Gebouwd in 1872
- Aantal kamers
- 4 kamers (3 slaapkamers)
Te koop: Brouwerstraat 43, Den Helder
Richtprijs: € 184.995,- k.k.
Midden in de geliefde Visbuurt van Den Helder staat deze nette tussenwoning uit 1872. Gelegen in een levendige volkswijk met karakter en gemeenschapsgevoel. Een woning met potentie, waar je direct in kunt trekken, maar ook de mogelijkheid hebt om naar eigen inzicht te verbeteren. De basis is méér dan goed – en dat biedt flexibiliteit.
Wonen zoals het is – of aanpakken naar wens
Dankzij de goede constructieve staat en functionele indeling is deze woning direct te betrekken. Tegelijkertijd is het een uitgelezen kans voor wie graag de mouwen opstroopt en zelf aan de slag wil. Denk aan het moderniseren van keuken of badkamer, verduurzaming of een nieuwe vloer – het kan allemaal, maar hoeft niet per se direct.
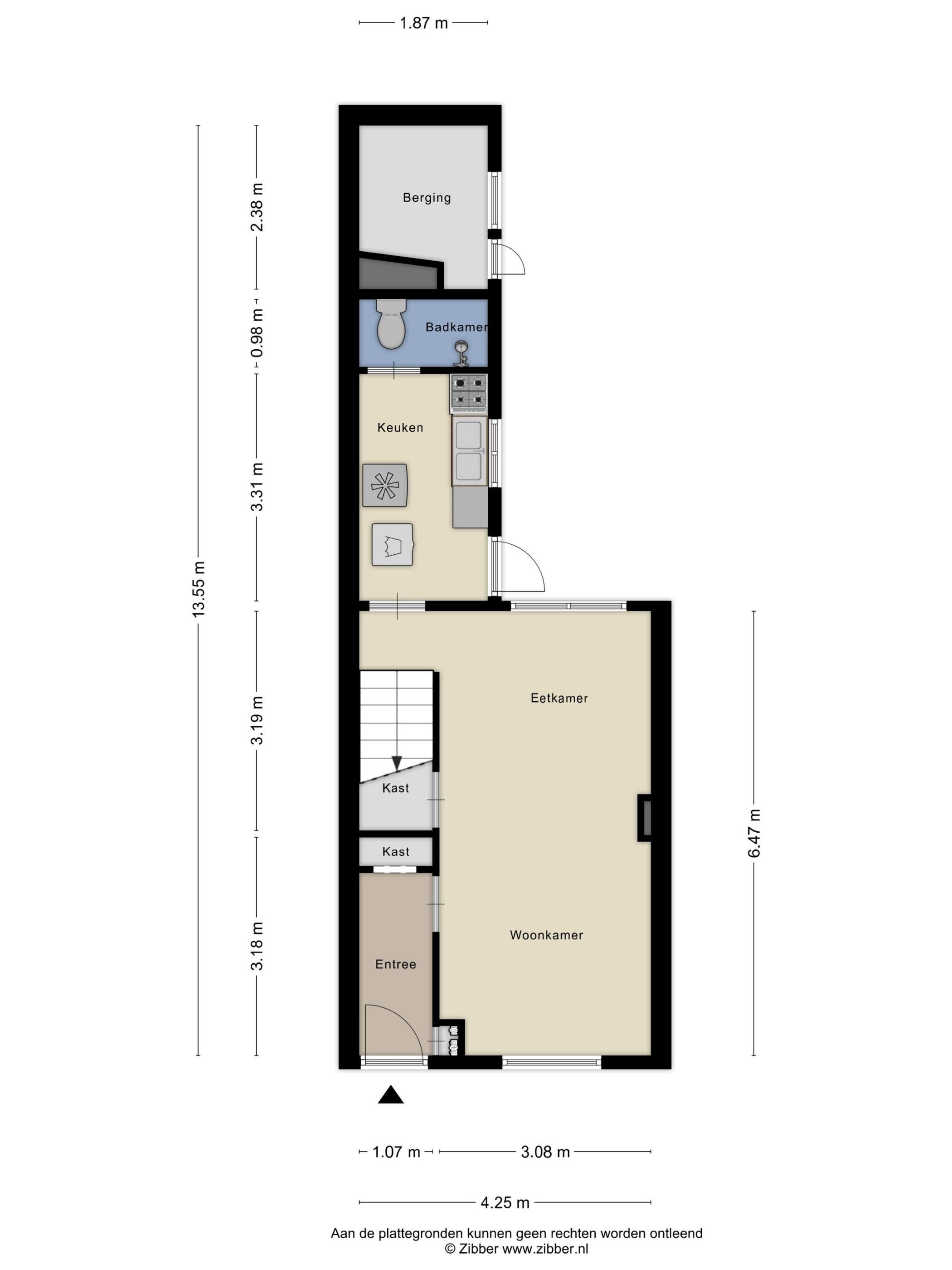
Indeling
De woning beschikt op de begane grond over een lichte woonkamer en een gesloten keuken aan de achterzijde. Aansluitend bevindt zich de badkamer met douche en toilet. Op de verdieping zijn twee slaapkamers aanwezig.
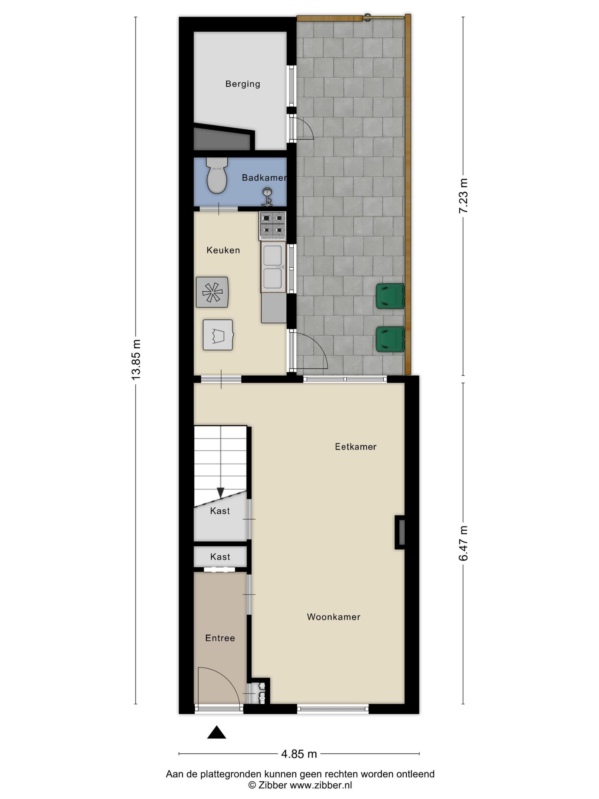
De achtertuin is bestraat en compact, met een achterom via de steeg. Prima geschikt voor een zitje of berging.
Ligging – hart van de Visbuurt
Gelegen in het midden van de Visbuurt, een van de oudste en meest herkenbare wijken van Den Helder. Hier groet men elkaar nog op straat. Winkels, scholen, OV en het centrum liggen op loopafstand. Parkeren kan gratis in de straat.
Kerngegevens
Bouwjaar: ca. 1872
Woonoppervlakte: ca. 70 m²
Perceeloppervlakte: ca. 85 m²
Energielabel: E
Cv-installatie aanwezig
Eigen grond
Richtprijs: € 184.995,- k.k.
Oplevering: in overleg, kan snel
Bezichtiging en biedingsprocedure
Bezichtigingen vinden uitsluitend plaats op maandagmiddag 14 en donderdag 17 juli 2025, alleen op afspraak.
Interesse? Neem contact met ons op om jouw bezichtiging in te plannen.
Biedingen kunnen worden uitgebracht tot maandag 21 juli 2025 om 12:00 uur.
Woning met potentie én direct bewoonbaar
Een nette woning met goede basis, midden in een echte buurt. Ideaal voor wie betaalbaar wil wonen met toekomstwaarde. Laat deze kans niet aan je voorbijgaan.
Disclaimer
Alle informatie in deze aanbieding is met grote zorgvuldigheid samengesteld. Toch kunnen onjuistheden of afwijkingen niet volledig worden uitgesloten. Kopers wordt aangeraden zelf de voor hen relevante zaken te controleren. Aan deze informatie kunnen geen rechten worden ontleend. Het schriftelijkheidsvereiste is van toepassing en een aanbieding is altijd vrijblijvend. Verrekening wegens over- of ondermaat is uitgesloten
Overdracht
- Vraagprijs
- € 184.995 k.k.
- Status
- Verkocht
Bouw
- Object type
- Eengezinswoning, tussenwoning
- Soort bouw
- Bestaande bouw
- Bouwjaar
- 1872
- Soort dak
- Plat dak bedekt met bitumineuze dakbedekking
Oppervlakte en inhoud
- Woonoppervlakte
- 66 m²
- Perceeloppervlakte
- 62 m²
- Inhoud
- 142 m³
Indeling
- Aantal kamers
- 4 kamers (3 slaapkamers)
- Aantal badkamers
- 1 badkamer en 1 apart toilet
- Badkamervoorzieningen
- Toilet
- Voorzieningen
- Natuurlijke ventilatie
Energie
- Energielabel
- E
- Energielabel registratie
- 08-10-2021
- Isolatie
- Dakisolatie, dubbel glas
- Verwarming
- CV-ketel
Buitenruimte
- Tuin
- Achtertuin
- Afmetingen achtertuin
- 12 m² (4 meter diep en 3 meter breed)
- ligging tuin
- Gelegen op het zuidoosten
Parkeergelegenheid
- Soort parkeergelegenheid
- Openbaar parkeren
Indicatie hypotheeklasten
Eigen inleg:
Spaargeld / overwaarde
Rente:
Laagste 10-jaars rente
Laagste 10-jaars rente
2,75% - Centraal Beheer Groen... - NHG
3,05% - Centraal Beheer Groen... - 80%
Laagste 20-jaars rente
3,52% - Syntrus Achmea Groen B... - NHG
3,79% - Syntrus Achmea Groen B... - 80%
Laagste 30-jaars rente
3,64% - Syntrus Achmea Groen B... - NHG
3,88% - Syntrus Achmea Groen B... - 80%
Hypotheek:
Bruto maandlasten: € 0 p/m
Netto maandlasten: € 0 p/m
Hoe berekenen we dit?
Het rentepercentage is gebaseerd op de laagste 10-jaars vaste rente voor één hypotheekdeel. De vermelde rente (2.75% met NHG) is gecontroleerd op 03-10-2025. Deze berekening is gebaseerd op een annuïteitenhypotheek die volledig wordt afgelost, waarbij de maandlasten gedurende de gehele looptijd gelijk blijven. De werkelijke rente en netto maandlasten kunnen variëren, afhankelijk van uw persoonlijke situatie en de hypotheekverstrekker. Raadpleeg een financieel adviseur voor een nauwkeurige berekening en advies. Aan deze berekening kunnen geen rechten worden ontleend; het dient enkel als indicatie.
Documentatie
Kadastrale kaart
Leefomgeving
Meetrapport-a-1563808-20250701171826
BAG uittreksel
Plattegronden PDF
Brochure
Bezichtiging
Bod uitbrengen
Waardebepaling
Zoekopdracht
Alles downloaden
Zonnegrenzen bekijken
Op de kaart
Inwoners in Den Helder
Cijfers voor postcodegebied 1781
- Totaal aantal inwoners
- 9050 inwoners
- Mannen
- 51%
- Vrouwen
- 49%
Inwoners in Den Helder
Cijfers voor postcodegebied 1781
- tot 15 jaar
- 13%
- 15 tot 25 jaar
- 12%
- 25 tot 35 jaar
- 26%
- 45 tot 65 jaar
- 31%
- 65 en ouder
- 18%
Huishoudens in Den Helder
Cijfers voor postcodegebied 1781
- Eenpersoons zonder kinderen
- 50%
- Meerpersoons zonder kinderen
- 24%
- Huishoudens zonder kinderen
- 74%
Huishoudens in Den Helder
Cijfers voor postcodegebied 1781
- Huishoudens met één kind
- 9%
- Huishoudens met meerdere kinderen
- 17%
- Huishoudens met kinderen
- 26%
Woningen in Den Helder
Cijfers voor postcodegebied 1781
- Woningen voor 1945
- 47%
- Woningen tussen 1945 en 1965
- 13%
- Woningen tussen 1965 en 1975
- 3%
- Woningen tussen 1975 en 1985
- 24%
- Woningen tussen 1985 en 1995
- 5%
Woningen in Den Helder
Cijfers voor postcodegebied 1781
- Woningen tussen 1995 en 2005
- 3%
- Woningen tussen 2005 en 2015
- 3%
- Woningen na 2015
- 2%
- Huurwoningen
- 50%
- Koopwoningen
- 50%
Overige in Den Helder
Cijfers voor postcodegebied 1781
- Gemiddelde WOZ waarde
- € 126.000,-
- Personen onder de 65 met uitkering
- 13%
Overige in Den Helder
Cijfers voor postcodegebied 1781
- Adressen per km²
- 2321
- Stedelijkheid (schaal 1 op 5)
- 80%
Korte feiten over Den Helder
Den Helder is de noordelijkste plaats en gemeente op het vasteland van de Nederlandse provincie Noord-Holland. De gemeente ligt in de regio Kop van Noord-Holland of Noordkop. Ten noordwesten van de stad ligt de zandplaat Noorderhaaks, ten noorden het Marsdiep met aan de overkant het eiland Texel en ten oosten de uitgestrekte waddenplaat Balgzand.
De Koopwoningbemiddelaar
Indien u vragen heeft of u wilt een bezichtiging inplannen, dan kunt u gebruik maken van het formulier hiernaast. Er zal daarna op korte termijn contact met u worden opgenomen.
Het Nieuwe Diep 33
1781AD, Den helder
(+31)223-694396 info@dekoopwoningbemiddelaar.nl www.dekoopwoningbemiddelaar.nlContact opnemen
De Koopwoningbemiddelaar
Ben je klaar om jouw woning te verkopen? Onze ervaren makelaars nemen je mee in het hele verkoopproces. Van het bepalen van de juiste vraagprijs tot het promoten van jouw woning en de afwikkeling van de verkoop, wij zorgen ervoor dat je zorgeloos en succesvol je woning kunt verkopen.
STAP 1: Bepaling van de vraagprijs
Het succesvol verkopen van je woning begint bij het vaststellen van de juiste vraagprijs. Onze makelaars doen een grondige marktanalyse en evalueren de staat en locatie van jouw woning om een competitieve prijs te bepalen. Met onze gratis waardebepaling krijg je een realistisch beeld van wat jouw woning op de huidige markt waard is.
STAP 2: Verkoopstrategie ontwikkelen
Een doeltreffende verkoopstrategie is cruciaal om je woning onder de aandacht te brengen van de juiste kopers. We werken nauw met je samen om jouw woning op de beste manier te positioneren en presenteren, rekening houdend met jouw doelgroep. Onze makelaars maken gebruik van innovatieve marketingtechnieken om een breed publiek te bereiken en het beste resultaat te behalen.
STAP 3: Presentatie van de woning
Een aantrekkelijke presentatie van jouw woning is de sleutel tot succes. Wij zorgen ervoor dat jouw woning opvalt in de markt met hoogwaardige foto's, overtuigende beschrijvingen en een doordachte online en offline marketingcampagne.
STAP 4: Voorbereiding op de bezichtigingen
Een opgeruimde, aantrekkelijke woning maakt een sterke eerste indruk op potentiële kopers. Onze makelaars bieden praktische tips en begeleiding om ervoor te zorgen dat jouw woning op zijn best wordt gepresenteerd.
STAP 5: Bezichtigingen
Bij het inplannen en uitvoeren van bezichtigingen nemen we jouw wensen en schema in acht. We zorgen ervoor dat potentiële kopers een rondleiding krijgen die hen een goed beeld geeft van de mogelijkheden van jouw woning.
STAP 6: Onderhandelingen
Zodra er een bod op jouw woning komt, begeleiden onze makelaars je door de onderhandelingen. We beoordelen elk bod zorgvuldig en bieden advies om ervoor te zorgen dat je het beste resultaat krijgt.
STAP 7: Afwikkeling van de verkoop
Wanneer er overeenstemming is bereikt over de prijs, zorgen we ervoor dat alle nodige documentatie correct en tijdig wordt opgesteld en verzonden naar de notaris.
Nieuwste reviews
-
Dirk Schuitema
Overgestapt van onze vorige beheerder naar Gewoon VvE Beheer, als bestuur kunnen wij met recht zeggen dat wij als vereniging worden geholpen...
-
Ruth Groen
Toen ik mijn oude huis uit moest heb ik gelukkig weer via de huurwoningbemiddelaar een nieuw huis kunnen krijgen. Heel erg bedankt hiervoor!...
-
Moos Benkhlafa
Komt altijd met de adequate oplossing van uit overleg en advies. Bedankt Met vriendelijke groet, Moos